Bilocale in vendita

Verona, Via Montorio - Borgo Santa Croce
€ 150.000
2 locali 2 locali
67 Mq 67 Mq
1 bagno 1 bagno

Bilocale in vendita

Verona, Via Montorio - Borgo Santa Croce

Descrizione annuncio

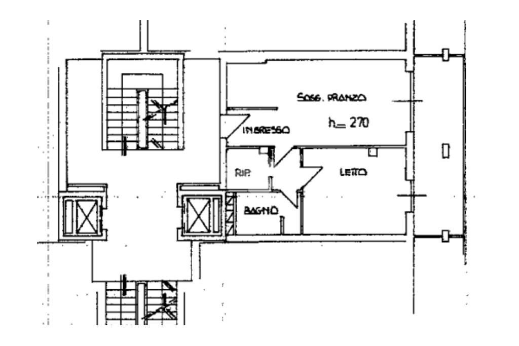
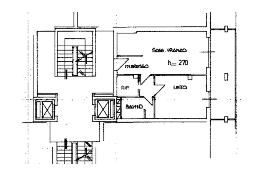
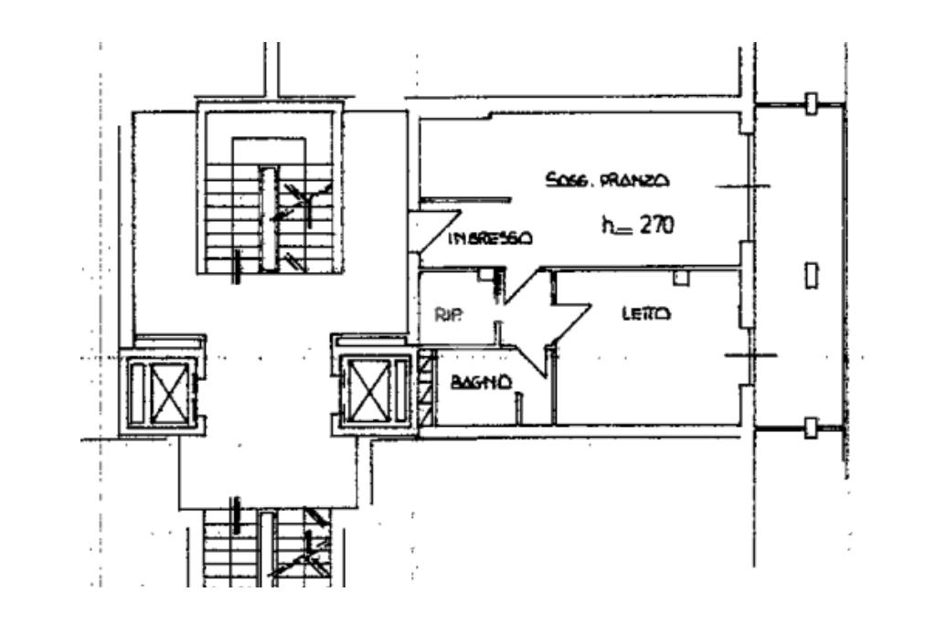
BORGO SANTA CROCE - Nel cuore di Borgo Santa Croce, proponiamo in vendita un appartamento bilocale di 67 mq situato al terzo piano di un edificio edificato all'inizio degli anni '90.

Questo immobile offre due locali ben distribuiti: soggiorno ampio con angolo cottura, una camera matrimoniale, un bagno cieco, un ripostiglio e un terrazzo abitabile, perfetto per momenti di relax all'aperto.
Completa la proprietà una comoda cantina utile per deposito e stoccaggio.

L'appartamento, recentemente ristrutturato al 110%, offre un ambiente moderno e confortevole. Gli infissi nuovi e il cappotto termico garantiscono un'ottima efficienza energetica, mentre la facciata appena rifatta dona un aspetto fresco e curato all'edificio. Il doppio ascensore facilita l'accesso all'appartamento, rendendolo ideale per ogni esigenza.

Il riscaldamento autonomo consente una gestione personalizzata del clima interno, assicurando comfort in ogni stagione. Questa soluzione abitativa rappresenta un'opportunità interessante per chi cerca una casa funzionale e ben collegata nel vivace contesto di Verona.

Mostra tutto

Nelle vicinanze

Trasporto pubblico Trasporto pubblico
Verona Porta Vescovo
Verona Porta Vescovo
1,5 Km
Via Montorio 57 II
Via Montorio 57 II
50 m
Via Montorio 78 III
Via Montorio 78 III
70 m
Ricariche auto elettriche Ricariche auto elettriche
AGSM - Via Montorio
140 m
Hotel Maxim
1,1 Km
AGSM Piazza San Tomaso
2,2 Km
AGSM - Lungadige S.Giorgio
2,5 Km
AGSM - Cimitero
2,5 Km
Scuole Scuole
Facoltà di Scienze Motorie
230 m
Scuola Media Guarino Da Verona
310 m
IIS Copernico Pasoli - sede di Via Dalla Corte
490 m
Rosani Fincato
510 m
Achille Forti
540 m
Farmacia Farmacia
Farmacia Santa Chiara
100 m
Farmacia Marchiori
620 m
Farmacia dottor Ceccherelli
750 m
Farmacia S. Antonio
870 m
Farmacia San Giuseppe
1,1 Km
Supermercati Supermercati
Migros Via Casorati
60 m
Migross Via Montano
370 m
Conad
690 m
Prix Discount
730 m
IN's
740 m
Negozi Negozi
Crash store
520 m
Negozi
650 m
Panificio Artigianale
770 m
Panificio Forneria Tezza
780 m
Buona Lessinia
810 m
Bar Bar
Bar Stoppa
280 m
Perlini ai giardini
610 m
Bar
620 m
Garden Caffè
650 m
Pima's Bar
730 m
Ristoranti Ristoranti
Ristoranti
170 m
Pizzeria Siè Borghi
560 m
Pizzeria Notte e Dì
750 m
Pizzeria Carlo Re
770 m
Pizzeria Betteloni
790 m
Mostra tutto

Caratteristiche

Rif.:
61122064
Piano:
3 di 9 con ascensore (Piano medio)
Terrazzi:
1
Camere da letto:
1
Arredamento:
Assente
Condizionamento:
Autonomo
Mostra tutto
Prezzo Prezzo
€ 150.000
Rata mutuo Rata mutuo
€ 708 / mese
Spese annue Spese annue
€ 500
Proponi il tuo prezzoProponi il tuo prezzo
Immobile valutato con T·Valuta

Classe Energetica

A2
A2
A2
A2
A2
A2
A2
A2
A2
EP globale non rinnovabile:
76.01 kW h/m² anno
EP globale rinnovabile:
9.94 kW h/m² anno
EP invernale del fabbricato:
EP estiva del fabbricato:
Anno di costruzione:
1991
Riscaldamento:
Autonomo
Tipo impianto:
A radiatori
Tipo alimentazione:
Metano

Ti interessa visionare l'immobile?

Fissa un appuntamento  Fissa un appuntamento

Richiedi informazioni

Clicca su Leggi per aprire l'informativa
* Questi campi sono obbligatori

Calcola il tuo mutuo

Semplice e senza impegno
Anticipo

( % )
Mutuo

( % )

pochi semplici passi

inserisci i tuoi dati
Questionario completato
Grazie per aver richiesto un appuntamento senza impegno con un nostro Consulente del Credito e Assicurativo.

Hai inserito correttamente tutti i dati necessari e a breve riceverai una e-mail con un link da convalidare per inviare i tuoi dati.
Affiliato
Studio Montorio Nuova Snc
P.le Buccari, 11/A 37141 Verona (VR)

Il nostro staff


  • Giovanni Biasi
    Collaboratore

  • Enrico Guerzoni
    Collaboratore

  • Giovanni Lucchi
    Affiliato

  • Joao Vitor Malvestio
    Responsabile

  • Irene Marchetto
    Coordinatrice
P.le Buccari, 11/A 37141 Verona (VR)
Zona: Montorio-Borgo Venezia-Borgo Santacroce
Mostra su mappa
Orari: 9.00 - 12.30 e 15.00 - 19.30 il sabato 9.00 - 12.30
Affiliato
Studio Montorio Nuova Snc
P.le Buccari, 11/A 37141 Verona (VR)

2025 Tecnocasa Franchising S.p.A. - P. IVA 08365160152 - Via Monte Bianco 60/A 20089 Rozzano (MI). Ogni agenzia ha un proprio titolare ed è autonoma. Privacy policy | Policy utilizzo | Cookie policy